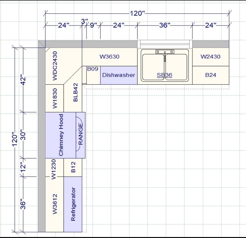
10 by 10 Kitchen
A 10'x10' Kitchen is a sample kitchen used for universal price comparisons across different cabinet types and styles. The kitchen industry uses the 10'x10' kitchen layout to give the consumer a general idea of what that particular cabinet door style costs. The actual cabinet order for your layout may be more or less, based on overall size and cabinet options selected. The 10'x10' Sample Kitchen is based on the 12 items listed below and does not include crown molding, decorative hardware, countertop, sink/faucet or appliances. The drawings shown below are a sample of what you can expect to receive when you get a FREE kitchen design from Toronto Cabinetry Canada. You can also visit our Design page for more information regarding your kitchen cabinet design.

